倉庫

かやの木町倉庫

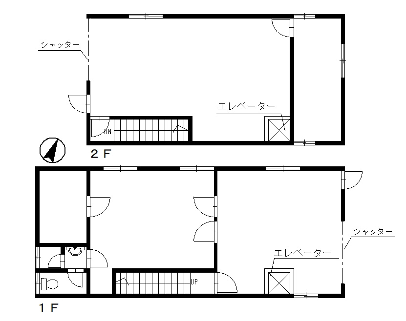
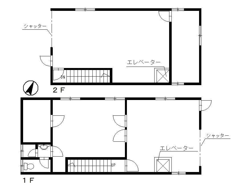
間取り

【間取り】

賃料

8.8万円

交通 中央線 「中津川」駅 徒歩28分
北恵那バス「中津川合同庁舎前」バス停下車 徒歩5分
間取り 所在地 岐阜県中津川市かやの木町 2726-1
建物面積 108.56㎡ 築年月(築年数) 1998年 1月 (築28年)

利回りとは

「利回り」は、当該不動産の1年間の予定賃料収入の不動産取得対価に対する割合であり、公租公課その他当該物件を維持するために必要な費用の控除前のものです。
また、予定賃料収入が確実に得られる事を保証するものではありません。

×

セールスポイント

敷地内に2台駐車可能です!
2階建ての貸倉庫 エレベータも完備してます
近隣には市役所やスーパなどあり オークワ中津川中村店まで徒歩3分(約189m)

地図

※地図上の物件位置は近隣に物件が所在することを表すものであり、実際の物件所在地とは異なる場合がございます。

周辺施設(14件)

  • オークワ中津川中村店
    約189m / 徒歩3分
    オークワ中津川中村店
  • マクドナルド 19号中津川店
    約272m / 徒歩4分
    マクドナルド 19号中津川店
  • スマイル中村店
    約325m / 徒歩5分
    スマイル中村店
  • DCMカーマ 中津川店
    約583m / 徒歩8分
    DCMカーマ 中津川店
  • ファミリーマート 中津川手賀野北店
    約574m / 徒歩8分
    ファミリーマート 中津川手賀野北店
  • セブンイレブン 中津川中村店
    約489m / 徒歩7分
    セブンイレブン 中津川中村店
  • ファミリーマート 中津川手賀野店
    約591m / 徒歩8分
    ファミリーマート 中津川手賀野店
  • 中津川市役所
    約638m / 徒歩8分
    中津川市役所
  • ココカラファイン 中村店
    約654m / 徒歩9分
    ココカラファイン 中村店
  • セリア 中津川インター店
    約870m / 徒歩11分
    セリア 中津川インター店
  • 中津川市立西幼稚園
    約1,425m / 徒歩18分
    中津川市立西幼稚園
  • V・drug 中津川店
    約935m / 徒歩12分
    V・drug 中津川店
  • 第二中学校
    約1,078m / 徒歩14分
    第二中学校
  • 南小学校
    約1,297m / 徒歩17分
    南小学校

営業時間:9:00~18:00 / 定休日:水曜日、夏季、GW、年末年始

かやの木町倉庫の物件詳細

所在地 岐阜県中津川市かやの木町 2726-1
交通 中央線 「中津川」駅 徒歩28分
北恵那バス「中津川合同庁舎前」バス停下車 徒歩5分
賃料 8.8万円 坪単価 0.27万円
管理費
敷金/保証金/礼金 0ヶ月 / 2ヶ月 / 1ヶ月 敷引/償却 - / -
雑費 権利金
所在階/階数 1-2階 / 2階建 建物構造 鉄骨造
建物面積 108.56㎡ 土地面積
築年月(築年数) 1998年 1月(築28年) 現況 空家
入居可能日 相談 契約期間 2年
更新料 更新事務手数料
用途地域 近隣商業地域
保険 保険加入義務:有、保険名:火災保険
保証会社 保証加入義務:必加入、保証会社名:日本セーフティー
駐車場 空き台数:2台 、 空有
設備条件 公共下水 / 公営水道 / エレベーター / 電気有
その他条件
備考 火災保険:別途加入要す 保証会社加入要す(契約時:賃料総額の100%(最低保証料:40,000円)・更新時:賃料総額の10%(最低保証料:10,000円)/年)
物件番号 78556368 取引態様 一般媒介
情報公開日 2026年1月16日 次回更新予定日 2026年1月30日
取引条件の有効期限 2026年1月30日
取扱い会社 マルイ不動産株式会社 中津川支店
〒509-9131
岐阜県中津川市千旦林42-1
岐阜県知事(6)第3877号
公益社団法人 岐阜県宅地建物取引業協会会員 東海不動産公正取引協議会加盟 公益財団法人 日本賃貸住宅管理協会

情報の見方

営業時間:9:00~18:00 / 定休日:水曜日、夏季、GW、年末年始

情報の見方

所在地 物件の住所を表示。(詳細住所は表示していない場合もある)
交通 物件(部屋)の沿線駅・バス停を表示。(複数駅・バス停の利用が可能な場合は最大3件まで)
間取り/詳細 数字は居室数を表示。LDKはそれぞれ「リビング」「ダイニング」「キッチン」、S(納戸)とは「納戸」「サービスルーム」「マルチルーム」「フリールーム」など建築基準法第28条に適合していないため、居室と認められない納戸その他の部分を表す。
価格 販売されている住戸の価格を表示。仲介手数料は含まない。
管理費 共同住宅の設備その他共用部分の維持および管理をするために必要な費用を表示。
修繕積立金 共用部分の修繕のために積立てる金額を表示。
×

類似物件

店舗一部

レストハウスMORI

賃料 5 万円 ~ 6.6 万円
住所 岐阜県中津川市中津川
交通

中央線中津川」駅 徒歩17分

事務所

中津川市東宮町の事務所

賃料 8.4 万円 ~ 13 万円
住所 岐阜県中津川市東宮町
交通

中央線中津川」駅 徒歩10分

店舗一部

ロイヤルハイム中津川店舗

賃料 11 万円
住所 岐阜県中津川市駒場
交通

中央線中津川」駅 徒歩11分

事業用地

千旦林借地

賃料 10 万円
住所 岐阜県中津川市千旦林
交通

中央線美乃坂本」駅 徒歩34分

店舗一部

ツインビルS棟 1F

賃料 9.9 万円
住所 岐阜県中津川市手賀野
交通

中央線中津川」駅 徒歩40分