事務所
| 賃料 |
11万円 | 交通 |
中央線 「中津川」駅
徒歩38分 北恵那バス 合の根口バス停下車 徒歩7分 |
|---|---|---|---|
| 間取り | R | 所在地 | 岐阜県中津川市中津川 |
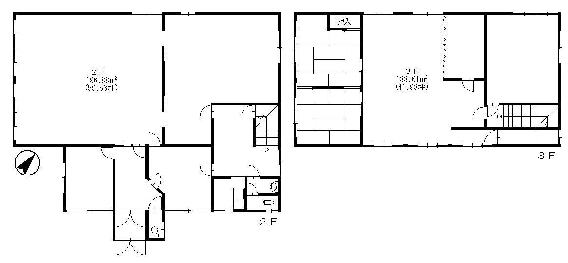
| 建物面積 | 512.69㎡ | 築年月(築年数) | 1990年 9月 (築35年) |
「利回り」は、当該不動産の1年間の予定賃料収入の不動産取得対価に対する割合であり、公租公課その他当該物件を維持するために必要な費用の控除前のものです。
また、予定賃料収入が確実に得られる事を保証するものではありません。

1階はクレーン付きの倉庫あり 工事関係の事務所・倉庫におすすめです
駐車場全部で30台分あり(敷地内15台、敷地外15台)
※地図上の物件位置は近隣に物件が所在することを表すものであり、実際の物件所在地とは異なる場合がございます。
0573-62-2201
営業時間:9:00~18:00 / 定休日:水曜日、夏季、GW、年末年始
| 所在地 | 岐阜県中津川市中津川 | ||
|---|---|---|---|
| 交通 |
中央線 「中津川」駅
徒歩38分 北恵那バス 合の根口バス停下車 徒歩7分 |
||
| 賃料 | 11万円 | 坪単価 | 0.07万円 |
| 管理費 | |||
| 敷金/保証金/礼金 | 0ヶ月 / 2ヶ月 / 1ヶ月 | 敷引/償却 | - / 退去時0ヶ月 |
| 雑費 | 権利金 | ||
| 所在階/階数 | 1-3階 / 3階建 | 建物構造 | 鉄骨造 |
| 建物面積 | 512.69㎡ | 土地面積 | |
| 築年月(築年数) | 1990年 9月(築35年) | 現況 | 空家 |
| 入居可能日 | 相談 | 契約期間 | 2年 |
| 更新料 | 0ヶ月 | 更新事務手数料 | |
| 用途地域 | 指定なし | ||
| 保険 | 保険加入義務:有、保険名:火災保険 | ||
| 保証会社 | 保証加入義務:必加入、保証会社名:日本セーフティー | ||
| 駐車場 | 空有 | ||
| 設備条件 | 公共下水 / 公営水道 / 静かな環境 / 電気有 / エアコン | ||
| その他条件 | |||
| 備考 | 保証会社加入要す(契約時:賃料総額の100%(最低保証料:40,000円)・更新時:賃料総額の10%(最低保証料:10,000円)/年)、火災保険加入要す、1階部分倉庫 ※現状貸し 駐車場:敷地外:15台 敷地内:15台 | ||
| 物件番号 | 97092705 | 取引態様 | 一般媒介 |
| 情報公開日 | 2025年12月5日 | 次回更新予定日 | 2025年12月19日 |
| 取引条件の有効期限 | 2025年12月19日 | ||
| 取扱い会社 |
マルイ不動産株式会社 中津川支店 〒509-9131 岐阜県中津川市千旦林42-1 岐阜県知事(6)第3877号 公益社団法人 岐阜県宅地建物取引業協会会員 東海不動産公正取引協議会加盟 公益財団法人 日本賃貸住宅管理協会 |
||
0573-62-2201
営業時間:9:00~18:00 / 定休日:水曜日、夏季、GW、年末年始
| 所在地 | 物件の住所を表示。(詳細住所は表示していない場合もある) | ||
|---|---|---|---|
| 交通 | 物件(部屋)の沿線駅・バス停を表示。(複数駅・バス停の利用が可能な場合は最大3件まで) | ||
| 間取り/詳細 | 数字は居室数を表示。LDKはそれぞれ「リビング」「ダイニング」「キッチン」、S(納戸)とは「納戸」「サービスルーム」「マルチルーム」「フリールーム」など建築基準法第28条に適合していないため、居室と認められない納戸その他の部分を表す。 | ||
| 価格 | 販売されている住戸の価格を表示。仲介手数料は含まない。 | ||
| 管理費 | 共同住宅の設備その他共用部分の維持および管理をするために必要な費用を表示。 | ||
| 修繕積立金 | 共用部分の修繕のために積立てる金額を表示。 | ||

【外観】外観